Kings Walk is an exclusive development of two 4 bedroom detached houses in the sort after location of Rowlands Castle. These two homes demonstrate modern living at it’s best with an open plan kitchen, diner and living space with bifolding doors to the spacious garden to the rear of the properties. There is also a separate living room featuring a log burner, so these properties are perfect for entertaining with friends and family or retreating for a cosy winters evening. There’s also a separate designated laundry area with an en-suite to the master bedroom and upstairs airing cupboard space. Building with the future in mind these two properties will have electric car charging points in the garage, which is situated to the rear of the properties.



A PAIR OF  FOUR BEDROOM COTTAGES IN AN IDEAL LOCATION
Kings Walk benefits from an abundance of nearby amenities including a primary school, restaurant and the Rowlands Castle train station with a direct line to London Waterloo. Situated just 3.1 miles from the properties is the village of Emsworth, with its waterside walks and local pubs making it a perfect destination for a Sunday afternoon, not to mention the Farmers Market every third Saturday each month. Chichester is a short 12.5 mile drive from Kings Walk with it’s fantastic shops and theatre making it a perfect day for the family.
Key features

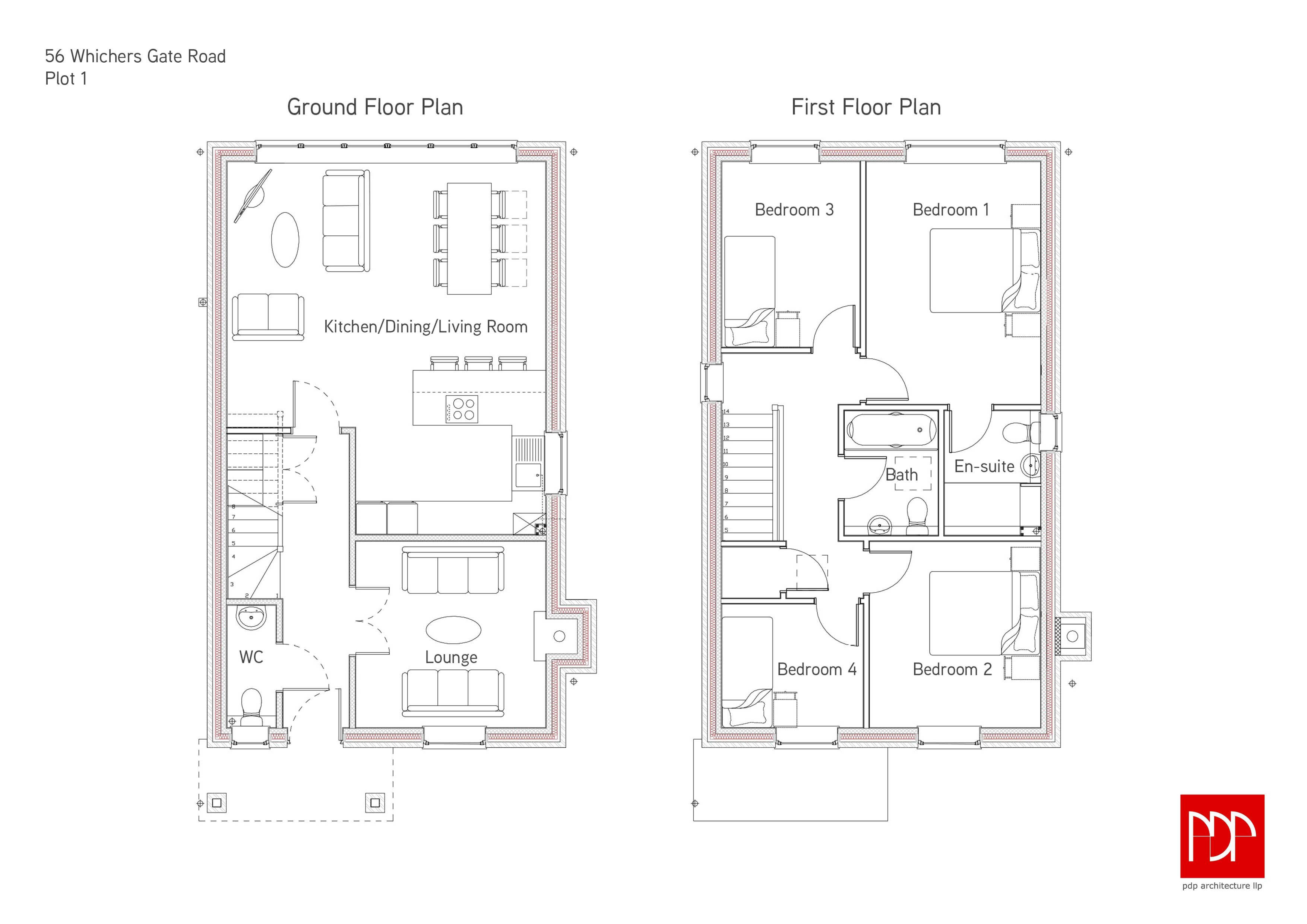
•             Detached family home
•             Front living room with log burner
•             Open plan kitchen/dining/living room
              with bi-folding  doors leading to the garden
•             Downstairs cloakroom
•             Ground floor underfloor heating
•             Master bedroom with en suite
•             Bedroom 4 could be used as a study
•             A family bathroom with modern fixtures and fittings
•             Storage/airing cupboard on upstairs landing
•             Detached garage
•             Visitor parking
•             Car charging point in the garage
CONTACT
Drywater, Portsmouth, PO63LR

Email: howard@drywaterdevelopments.co.uk

Phone: 02394 00 1880
SOCIAL MEDIA
ABOUT US
Julian House, Managing Director of Wilson House Developments has partnered up with Howard Smith , Founder, Owner and Director
of Drywater Developments to maximise their resources to  build high quality houses in Hampshire and UK .
Copyright © Drywater Developments 2020 All right reserved.